一、應用背景
隨著城市化進程的不斷加快,各類跨路線橋梁施工變得極為常見,為保證跨越道路正常通行,門式支架被廣泛采用。在此類大型模架工程中,僅靠傳統施工經驗進行施工組織設計和管理常常會出錯,甚至出現門式支架整體失穩的情況。
如今,隨著BIM技術在路橋項目應用中逐漸成熟,可以實現門洞設計的可視化,并通過精確算量來減少材料損耗和施工周期,還可以通過三維模型幫助解決門洞工程設計和施工過程中存在的問題,提高施工的安全性和經濟性。
二、應用目標
1、質量目標:實現信息協同與復核設計成果,保障方案質量;
2、進度目標:實現施工方案的可視化模擬,加快施工人員理解和溝通速度,提高施工效率;
3、成本目標:實現精準算量,避免材料堆積、減少二次搬運及提高周轉利用率。
三、應用流程
根據初步門洞搭設方案及道路平面圖,對過車門洞進行三維模型搭建。同時結合現場實際情況,發現門洞方案問題,提出優化建議并采納各方意見,制定最優方案。最后復核是否符合施工要求,若符合交付于現場技術負責人,指導現場施工。
圖1 實施應用流程圖
四、應用案例
本文以國道311馬棚楊互通立交為例,為大家講述具體的應用方法。
1、門洞施工方案優化
通過門洞三維模型搭設,發現初步方案存在以下問題。
問題1:由于本項目門洞與A匝道橋梁方向不一致,而原方案門洞最上層H型鋼沿國道107布置(圖2左),腳手架沿A匝道橫橋向布置,使得該門洞搭設方式不便于上層腳手架的搭建。
處理方法:經過BIM小組對門洞搭設方式進行優化,將最上層H型鋼方向調整為沿A匝道橫橋向鋪設(圖2右),使得門洞與腳手架能夠完美結合。
圖2 優化前方案(左) 優化后方案(右)
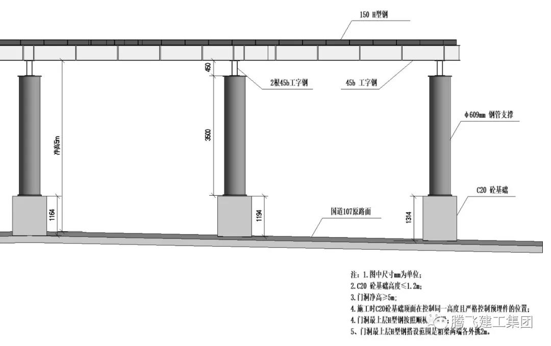
問題2:若不考慮現場橫坡問題,道路外側混凝土基礎高度將大于模板高度(模板高度為1.22m)。
處理方法:通過對門洞進行精細化建模,計算出混凝土基礎高度。原方案:立柱高度3.5m,道路外側混凝土基礎高度1.314>1.22,不滿足施工要求(圖3);優化后方案:立柱高度4m,道路外側混凝土基礎高度0.814<1.22,滿足施工要求。
圖3 門洞橫斷面圖
2、施工工序模擬
通過施工方案模擬,施工方能夠直觀地觀察整個施工工藝流程,及早發現施工中可能存在的風險和缺陷,從而優化工藝流程,達到減少風險、縮短工期和提高安全防范意識的目的(圖4)。
圖4 門洞施工流程
3、創建精細化模型,工程量統計
(1)創建門洞及腳手架精細化模型
通過創建精細化模型,增強了工程量統計的可靠性(圖5)。
圖5 馬棚楊互通立交A匝道7-8跨門洞及腳手架模型
(2)工程量統計
①門洞構件工程量統計
在施工方案中,考慮到107國道保通問題,門洞為左右幅分開施工,所以需要分開統計左右幅工程量,以達到精準報量與減少二次搬運的目的。
圖6 門洞工程量
②門洞混凝土基礎方量統計
由于107國道存在橫坡,且需保證最上層工字鋼保持水平的,致使5個混凝土基礎的高度均不相同,故需分別對其進行計算和規劃,達到精準報送混凝土的目的。
圖7 混凝土基礎方量
③門洞區域腳手架桿件工程量
由于門洞與A匝道斜交,導致該區域腳手架工程量人工統計困難。BIM小組通過創建腳手架基元族,并設置該基元族各桿件數。然后將基元族載入到項目中,并完成族的定位放置(圖8)。
圖8 創建腳手架基元族并載入項目
完成門洞區域腳手架模型后,通過程序編寫實現工程量自動統計,減少了人工統計的失誤,提高了工作效率(圖9)。
圖9 dynamo提取工程量
五、經濟效益分析
1、施工方案優化
通過對施工方案優化,有3根8mH型鋼需要截斷,其費用由租賃費變為購置費,根據市場價每根H型鋼1190元計算,合計3570元。
但方案優化后,不必用無縫鋼筋對盤扣式腳手架進行整體連接,共節約無縫鋼管約2噸,根據市場價每噸無縫鋼管3200元計算,合計6400元。
2、工程量統計
準確的算出門洞分階段施工中各階段的工程量,方便現場對材料進行規劃,減少材料的二次搬運。通過計劃進度與實際進度進行對比,合計共節約工期8天。按照每天5名工人,單價300元/人/工日;每天機械數量1臺,單價600元/臺/工日計算,合計16800元。
圖10 實際成本節約統計表
六、應用總結
1、通過BIM技術的可視化,提前對門洞模型進行搭建,發現問題并進行反饋,做到提前優化、提前規避,使得門洞施工能夠順利有序的進行。
2、通過精細BIM模型的工程量自動化統計,改變了根據二維圖紙按照部件類型進行計算表手算的傳統模式,達到了數據可靠、工作高效的目的。
3、通過對門洞分階段施工工程量進行統計,實現了對各階段工程量的精確把控。